賃貸 店舗一部

兵庫県神戸市 中央区中町通4丁目

賃料

15.4万円

管理費等
敷金 14万円
礼金 42万円
保証金
階建・階 地上2階 1階部分
使用部分面積 37.75㎡(約11.41坪)

神戸・阪神間は事業用賃貸専門(店舗・倉庫・工場・事務所)で実績多数のエヌワイ・オフィスサポートへお任せください

現地(外観)

現地(外観)

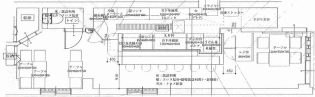
間取り図

間取り図

現地(外観)

現地(外観)

現地(外観)

現地(外観)

物件詳細

物件種別

賃貸住宅以外の建物一部

物件種目

店舗一部 (未入居)

情報更新日

2022年06月24日

次回更新予定日

2026年05月22日

物件番号

6976280884

所在地

兵庫県神戸市 中央区中町通4丁目

建物名

神戸市中央区中町通4丁目/1階 貸店舗

交通

神戸高速鉄道東西線高速神戸駅 徒歩4分
東海道本線神戸駅 徒歩7分
神戸高速鉄道東西線新開地駅 徒歩7分

小学校

中学校

現況

その他

入居可能時期

予定/2022年08月上旬

賃料

15.4万円

管理費

共益費

雑費

駐車場

その他ランニングコスト

礼金

42万円

敷金・精算

14万円

保証金・償却

権利金

造作譲渡

鍵交換代

室内清掃費

その他一時金

建物構造

その他(コンクリートブロック)

階建・所在階

地上2階 1階部分

築年月

1962[S37]年11月

使用部分面積

37.75㎡ (約11.41坪)

間取り

バルコニー

総戸数

契約期間

2年

更新料

フリーレント

定期借家

保険

要、35,000円、2年、あんしん認可特定(例)
※入居者や条件によっては、保険等内容が変更になる場合があります。

賃貸保証

加入要(㈱近畿保証サービス)

クレジットカード決済

条件等

飲食店可、居抜き

管理会社名

管理員の勤務形態

インスペクション

性能評価

リフォーム・
リノベーション

用途地域

接道

設備

特記

備考

◆契約面積:約11.4坪◆現:居酒屋営業中(7月末空き予定)◆居抜き◆保証会社・火災保険加入要

取引態様

一般媒介

担当者

※物件に関するお問合せは、物件詳細ページの「情報提供会社」に表示されている不動産会社へ直接お願いいたします。

※間取り図は、現況を優先させていただきます。

情報提供会社

(株)エヌワイ・オフィスサポート

会社情報を見る

住所

大阪府大阪市中央区内本町1丁目2-11

交通

大阪市高速軌道谷町線谷町四丁目 徒歩2分

TEL

06-6949-8162

FAX

06-6949-8182

免許番号

大阪府知事免許(2)第059107号

所属団体

(一社)大阪府宅地建物取引業協会
(公社)近畿地区不動産公正取引協議会

loading