賃貸 店舗一部

大阪府大阪市 都島区中野町4丁目

賃料

24.2万円

管理費等
敷金 3ヶ月
礼金 3ヶ月
保証金
階建・階 地上5階 1階部分
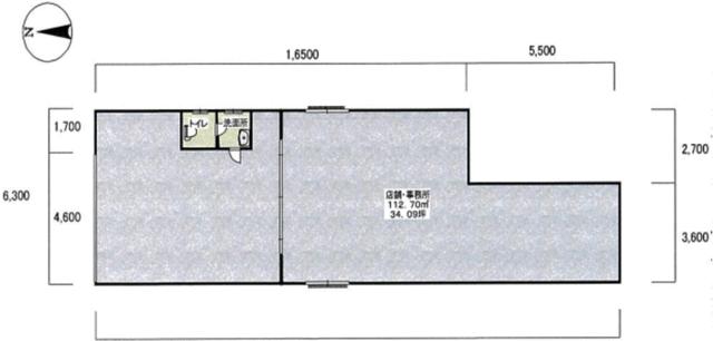
使用部分面積 112.7㎡(約34.09坪)

JR『桜ノ宮駅』南口出てすぐの1階店舗!スクール系・物販系・美容・整骨院系適す。

間取り図

間取り図

物件詳細

物件種別

賃貸住宅以外の建物一部

物件種目

店舗一部 (未入居)

情報更新日

2022年06月25日

次回更新予定日

2026年05月23日

物件番号

6976045163

所在地

大阪府大阪市 都島区中野町4丁目

建物名

交通

大阪環状線桜ノ宮駅 徒歩1分

小学校

中学校

現況

空家

入居可能時期

相談

賃料

24.2万円

管理費

共益費

雑費

駐車場

その他ランニングコスト

礼金

3ヶ月

敷金・精算

3ヶ月

保証金・償却

権利金

造作譲渡

鍵交換代

室内清掃費

その他一時金

建物構造

鉄骨造

階建・所在階

地上5階 1階部分

築年月

1999[H11]年06月

使用部分面積

112.7㎡ (約34.09坪)

間取り

バルコニー

総戸数

契約期間

1年

更新料

フリーレント

定期借家

保険


※入居者や条件によっては、保険等内容が変更になる場合があります。

賃貸保証

クレジットカード決済

条件等

飲食店不可

管理会社名

管理員の勤務形態

インスペクション

性能評価

リフォーム・
リノベーション

用途地域

接道

設備

特記

備考

保証会社加入要火災保険加入条件有別途:ゴミ業者契約有

取引態様

専任媒介

担当者

※物件に関するお問合せは、物件詳細ページの「情報提供会社」に表示されている不動産会社へ直接お願いいたします。

※間取り図は、現況を優先させていただきます。

情報提供会社

(株)シー・イー・マネジメント

住所

大阪府大阪市中央区南船場4丁目12-20

交通

大阪市高速軌道四つ橋線四ツ橋 徒歩2分

TEL

06-6241-3633

FAX

06-6241-3635

免許番号

国土交通大臣免許(2)第008920号

所属団体

(一社)大阪府宅地建物取引業協会
(公社)近畿地区不動産公正取引協議会

loading