賃貸 店舗一部

大阪府大阪狭山市金剛2丁目

賃料

13万円

管理費等
敷金
礼金
保証金 80万円
階建・階 地上2階 2階部分
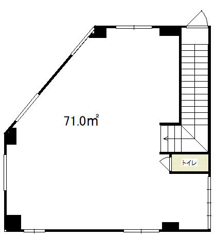
使用部分面積 71㎡(約21.47坪)

間取り図

間取り図

物件詳細

物件種別

賃貸住宅以外の建物一部

物件種目

店舗一部 (未入居)

情報更新日

2022年06月24日

次回更新予定日

2026年05月22日

物件番号

6970456890

所在地

大阪府大阪狭山市金剛2丁目 地図を見る

建物名

交通

南海電鉄高野線大阪狭山市駅 徒歩2分  駅までmap
南海電鉄高野線金剛駅 徒歩20分  駅までmap

小学校

中学校

現況

空家

入居可能時期

即時

賃料

13万円

管理費

共益費

雑費

駐車場

近有 10,000円/月

その他ランニングコスト

礼金

敷金・精算

保証金・償却

80万円

権利金

造作譲渡

鍵交換代

室内清掃費

その他一時金

建物構造

鉄骨造

階建・所在階

地上2階 2階部分

築年月

2000[H12]年01月

使用部分面積

71㎡ (約21.47坪)

間取り

バルコニー

総戸数

契約期間

2年

更新料

フリーレント

定期借家

保険

要、24,000円、2年、家財火災(例)
※入居者や条件によっては、保険等内容が変更になる場合があります。

賃貸保証

クレジットカード決済

条件等

管理会社名

管理員の勤務形態

インスペクション

性能評価

リフォーム・
リノベーション

用途地域

接道

設備

特記

備考

取引態様

専任媒介

担当者

※物件に関するお問合せは、物件詳細ページの「情報提供会社」に表示されている不動産会社へ直接お願いいたします。

※間取り図は、現況を優先させていただきます。

情報提供会社

住所

大阪府大阪狭山市金剛2丁目13-26

交通

南海電鉄高野線大阪狭山市 徒歩分

TEL

072-366-8119

FAX

072-366-8109

免許番号

大阪府知事免許(13)第018279号

所属団体

(一社)大阪府宅地建物取引業協会
(公社)近畿地区不動産公正取引協議会

loading