売買 店舗付き住宅

島根県江津市都野津町 6DK

価格

1,400万円

建物構造 木造
土地面積 公簿373.94㎡(約113.11坪)
建物延面積 203.03㎡
階建 地上2階
築年月 1975[S50]年10月
用途地域 第一種住居地域

店舗内

店舗内

住居

住居

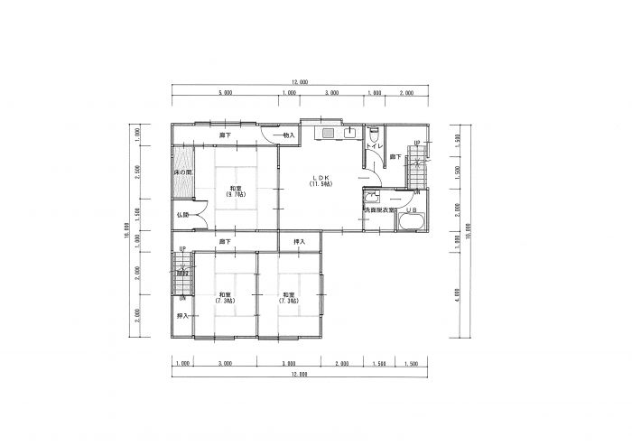
1F図面

1F図面

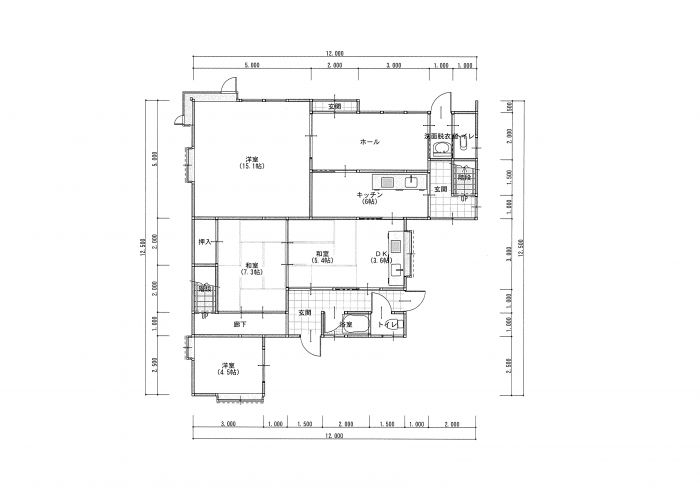
2F図面

2F図面

自宅用駐車場

自宅用駐車場

物件詳細

物件種別

売住宅以外の建物全部

物件種目

店舗付き住宅

情報更新日

2026年03月14日

次回更新予定日

2026年05月23日

物件番号

6002896141

所在地

島根県江津市都野津町 地図を見る

建物名

交通

山陰本線都野津駅 徒歩13分  駅までmap

小学校

津宮 1,800m

中学校

青陵 2,800m

現況

居住中

引渡可能時期

相談

価格

1,400万円

土地面積

公簿 373.94㎡ (約113.11坪)

私道面積

建物構造

木造

階建

地上2階

築年月

1975[S50]年10月

建物延面積

203.03㎡

建物面積

間取り

6DK

バルコニー

駐車場

有 無料 駐車場3台分以上

その他ランニングコスト

その他一時金

条件等

土地権利

所有権

地目

(現況地目:宅地)

都市計画

用途地域

第一種住居地域

地域地区

建ぺい率・容積率

60%・200%

容積率の制限内容

地勢

平坦

国土法

接道

【角地】 北西 幅:11m 公道 接面:24m 舗装有/北東 幅:6m 公道 接面:28m

セットバック

法令上の制限

再建築

インスペクション

性能評価

工事完了予定年月

建築確認

施工会社名

管理員の勤務形態

総戸数

リフォーム・
リノベーション

設備

プロパンガス

特記

備考

以前は飲食店でした。

取引態様

一般媒介

担当者

(電話)0855-52-2426

※物件に関するお問合せは、物件詳細ページの「情報提供会社」に表示されている不動産会社へ直接お願いいたします。

※間取り図は、現況を優先させていただきます。

情報提供会社

(有)田中工務所

会社情報を見る

住所

島根県江津市嘉久志町イ1681-4

交通

山陰本線江津 徒歩分

TEL

0855-52-2426

FAX

0855-52-2420

免許番号

島根県知事免許(11)第456号

所属団体

(公社)島根県宅地建物取引業協会
中国地区不動産公正取引協議会

loading