売買 新築一戸建

高知県香南市野市町 西野 4LDK

価格

3,580万円

築年月 2022[R4]年10月
土地面積 公簿158.27㎡(約47.87坪)
建物面積 105.16㎡(約31.81坪)
階建 地上2階
間取り 4LDK
建・容率 70%・200%

物件詳細

物件種別

売一戸建て住宅等

物件種目

新築一戸建 (新築)

情報更新日

2026年04月20日

次回更新予定日

2026年05月18日

物件番号

6002893953

所在地

高知県香南市野市町 西野 地図を見る

交通

のいち停 徒歩3分
ごめん・なはり線 のいち駅 徒歩3分

小学校

野市小学校 450m

中学校

野市中学校 1,400m

現況

未完成

引渡可能時期

相談

価格

3,580万円

土地面積

公簿 158.27㎡ (約47.87坪)

私道面積

建物構造

木造

階建

地上2階

築年月

2022[R4]年10月

建物面積

105.16㎡ (約31.81坪)

間取り

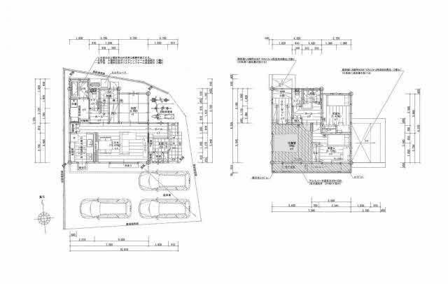
4LDK LDK15.6帖
和4.5洋8/5.7LDK15.6

バルコニー・庭

駐車場

その他ランニングコスト

その他一時金

条件等

土地権利

所有権

地目

(現況地目:宅地)

都市計画

市街化区域

用途地域

無指定

地域地区

建ぺい率・容積率

70%・200%

容積率の制限内容

地勢

平坦

国土法

接道

北 幅:6m 公道/東 幅:9.6m 公道

セットバック

法令上の制限

再建築

建築確認

有 【建築確認番号】第R04-00085号

施工会社名

インスペクション

瑕疵保証

瑕疵保険

瑕疵保険検査基準に適合

設備保証

性能評価

評価・証明書:建築確認完了検査済証

リフォーム・
リノベーション

設備

温水洗浄便座、浴室乾燥機、浴室1坪以上、シャワー付洗面化粧台、システムキッチン、IHクッキングヒーター、食器洗浄乾燥機、床下収納、ウォークインクローゼット、複層ガラス、雨戸、シャッター、モニター付インターホン、火災報知器(報知器)、上水道、太陽光発電システム

特記

制震構造

備考

取引態様

売主

担当者

※物件に関するお問合せは、物件詳細ページの「情報提供会社」に表示されている不動産会社へ直接お願いいたします。

※間取り図は、現況を優先させていただきます。

周辺環境情報
小学校

野市小学校 (450m)

中学校

野市中学校 (1,400m)

情報提供会社

有限会社福徳建設

会社情報を見る

住所

高知県高知市北御座12番18号

TEL

088-883-9396

FAX

088-883-9428

免許番号

高知県知事免許(8)第1896号

所属団体

(公社)高知県宅地建物取引業協会
四国地区不動産公正取引協議会

loading