売買 新築一戸建

高知県高知市神田 3LDK

価格

3,180万円

築年月 2022[R4]年09月
土地面積 公簿95.82㎡(約28.98坪)
建物面積 93.74㎡(約28.35坪)
階建 地上2階
間取り 3LDK
建・容率 60%・180%

物件詳細

物件種別

売一戸建て住宅等

物件種目

新築一戸建 (新築)

情報更新日

2026年04月20日

次回更新予定日

2026年05月18日

物件番号

6002878933

所在地

高知県高知市神田 地図を見る

交通

神田本村停 徒歩8分

小学校

神田小学校 260m

中学校

西部中学校 1,500m

現況

未完成

引渡可能時期

相談

価格

3,180万円

土地面積

公簿 95.82㎡ (約28.98坪)

私道面積

建物構造

木造

階建

地上2階

築年月

2022[R4]年09月

建物面積

93.74㎡ (約28.35坪)

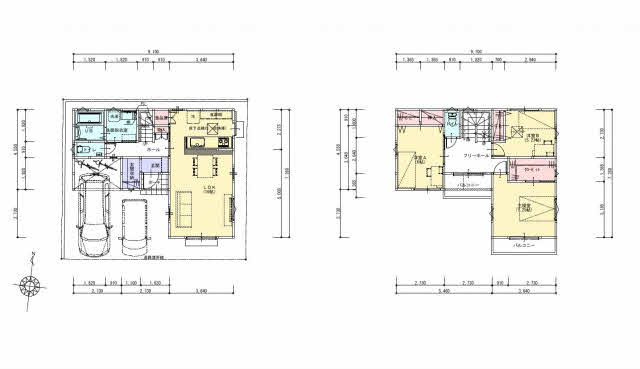
間取り

3LDK LDK16帖
洋7.2/6/5.2LDK16他8

バルコニー・庭

駐車場

その他ランニングコスト

その他一時金

条件等

土地権利

所有権

地目

(現況地目:宅地)

都市計画

市街化区域

用途地域

第一種中高層住居専用地域

地域地区

建ぺい率・容積率

60%・180%

容積率の制限内容

地勢

平坦

国土法

接道

【一方】 南 幅:4.5m 公道 接面:10.4m

セットバック

法令上の制限

再建築

建築確認

有 【建築確認番号】R04-0004号

施工会社名

インスペクション

瑕疵保証

瑕疵保険

瑕疵保険検査基準に適合

設備保証

性能評価

リフォーム・
リノベーション

設備

温水洗浄便座、浴室乾燥機、シャワー付洗面化粧台、IHクッキングヒーター、食器洗浄乾燥機、床下収納、ウォークインクローゼット、複層ガラス、モニター付インターホン、火災報知器(報知器)、上水道、下水道、太陽光発電システム

特記

日当たり良好

備考

取引態様

売主

担当者

※物件に関するお問合せは、物件詳細ページの「情報提供会社」に表示されている不動産会社へ直接お願いいたします。

※間取り図は、現況を優先させていただきます。

周辺環境情報
小学校

神田小学校 (260m)

中学校

西部中学校 (1,500m)

情報提供会社

有限会社福徳建設

会社情報を見る

住所

高知県高知市北御座12番18号

TEL

088-883-9396

FAX

088-883-9428

免許番号

高知県知事免許(8)第1896号

所属団体

(公社)高知県宅地建物取引業協会
四国地区不動産公正取引協議会

loading