売買 売地

高知県香美市土佐山田町 栄町 住宅用地

価格

1,200万円

坪単価 12.21万円
土地面積 実測325.18㎡(約98.36坪)
最適用途 住宅用地
地目 (宅地)
建・容率 60%・160%
用途地域 第二種住居地域

物件詳細

物件種別

売土地

物件種目

売地

情報更新日

2026年04月20日

次回更新予定日

2026年05月18日

物件番号

6002873728

所在地

高知県香美市土佐山田町 栄町 地図を見る

区画名

交通

山田西町停 徒歩8分

小学校

中学校

現況

更地

引渡可能時期

相談

価格

1,200万円

坪単価

12.21万円

土地面積

実測 325.18㎡ (約98.36坪)

私道面積

最適用途

住宅用地

土地権利

所有権

地目

(現況地目:宅地)

都市計画

市街化区域

用途地域

第二種住居地域

地域地区

建ぺい率・容積率

60%・160%

容積率の制限内容

地勢

総区画数

国土法

接道

西 幅:2.2m 公道 接面:2.4m

その他ランニングコスト

その他一時金

条件等

建築条件有

性能評価

セットバック

要 2.44㎡

法令上の制限

再建築

開発許可等番号

分譲

開発面積総面積

総販売面積

設備

プロパンガス、電気、上水道、下水道

特記

備考

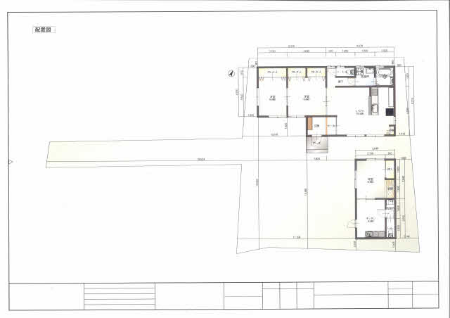
香美市土佐山田町栄町75番1の土地に、新築平家建て建物22坪を建設予定で間取り変更可能です。この建物とは別に未登記の平屋建て中古物件の建物もあります。 建物代金:1400万円 新築建物平家建て間取り:6洋 8洋 16.2LDK 浴室 洗面 トイレ 中古建物平家建て間取り:6和 6K トイレ 合計:2600万円

取引態様

一般媒介

担当者

※物件に関するお問合せは、物件詳細ページの「情報提供会社」に表示されている不動産会社へ直接お願いいたします。

※間取り図は、現況を優先させていただきます。

情報提供会社

エスティハウス有限会社

会社情報を見る

住所

高知県高知市比島町4丁目11番1号

交通

土讃線薊野 徒歩10分

TEL

088-824-0213

FAX

088-824-8391

免許番号

高知県知事免許(12)第1112号

所属団体

(公社)高知県宅地建物取引業協会
四国地区不動産公正取引協議会

loading