賃貸 店舗一部

高知県高知市帯屋町1丁目

icon-new

賃料

15万円

管理費等
敷金 3ヶ月 45万円
礼金
保証金
階建・階 地上4階(地下1階) B1階部分
使用部分面積 53.88㎡(約16.29坪)

物件詳細

物件種別

賃貸住宅以外の建物一部

物件種目

店舗一部

情報更新日

2026年02月01日

次回更新予定日

2026年02月15日

物件番号

6002868390

所在地

高知県高知市帯屋町1丁目 地図を見る

建物名

ダルマビル

交通

とさでん交通桟橋線はりまや橋駅 徒歩3分  駅までmap

小学校

中学校

現況

空家

入居可能時期

即時

賃料

15万円

管理費

共益費

雑費

駐車場

その他ランニングコスト

礼金

敷金・精算

3ヶ月 45万円

保証金・償却

権利金

造作譲渡

鍵交換代

室内清掃費

その他一時金

建物構造

RC

階建・所在階

地上4階(地下1階) B1階部分

築年月

1986[S61]年11月

使用部分面積

53.88㎡ (約16.29坪)

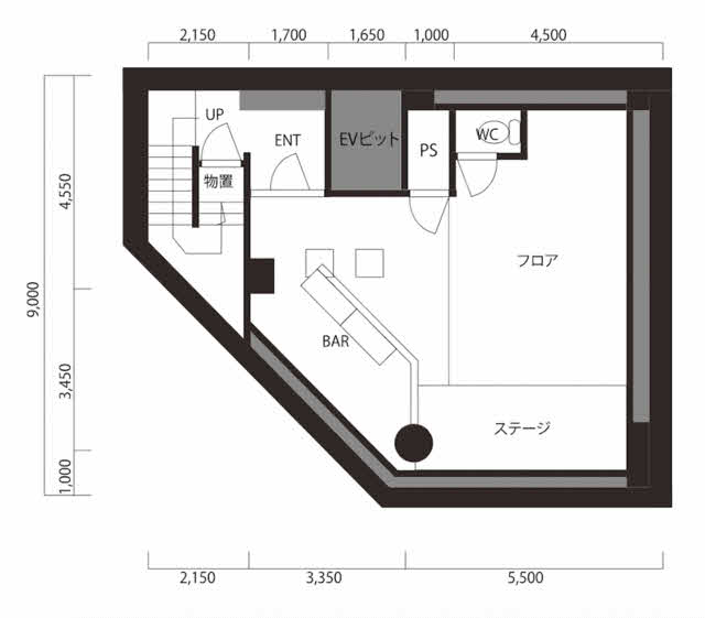
間取り

バルコニー

総戸数

契約期間

2年

更新料

フリーレント

定期借家

保険

要、火災(例)
※入居者や条件によっては、保険等内容が変更になる場合があります。

賃貸保証

クレジットカード決済

条件等

管理会社名

管理員の勤務形態

インスペクション

性能評価

リフォーム・
リノベーション

用途地域

接道

設備

特記

備考

家賃保証加入必要(審査あり)

取引態様

代理

担当者

※物件に関するお問合せは、物件詳細ページの「情報提供会社」に表示されている不動産会社へ直接お願いいたします。

※間取り図は、現況を優先させていただきます。

情報提供会社

株式会社ライフ・カラーズ

会社情報を見る

住所

高知県高知市桜井町1丁目4番5号

交通

とさでん交通後免線菜園場町 徒歩10分

TEL

088-821-8200

FAX

088-855-6650

免許番号

高知県知事免許(3)第2716号

所属団体

(公社)高知県宅地建物取引業協会
四国地区不動産公正取引協議会

loading