売買 中古一戸建

熊本県熊本市西区花園7丁目 6LDK

価格

1,700万円

築年月 1990[H2]年04月
土地面積 公簿375.51㎡(約113.59坪)
建物面積 158.3㎡(約47.88坪)
階建 地上2階
間取り 6LDK
建・容率 40%・80%

物件詳細

物件種別

売一戸建て住宅等

物件種目

中古一戸建

情報更新日

2026年02月15日

次回更新予定日

2026年03月29日

物件番号

6002827690

所在地

熊本県熊本市西区花園7丁目 地図を見る

交通

柿原公民館前停 徒歩5分

小学校

中学校

現況

空家

引渡可能時期

即時

価格

1,700万円

土地面積

公簿 375.51㎡ (約113.59坪)

私道面積

建物構造

木造

階建

地上2階

築年月

1990[H2]年04月

建物面積

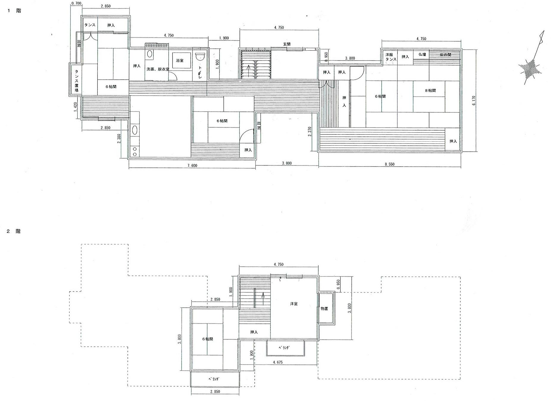
158.3㎡ (約47.88坪) 建物面積1階129.42㎡、建物面積2階28.88㎡

間取り

6LDK

バルコニー・庭

駐車場

有 無料 駐車場2台分

その他ランニングコスト

その他一時金

条件等

土地権利

所有権

地目

(現況地目:宅地)

都市計画

市街化区域

用途地域

第一種低層住居専用地域

地域地区

その他

建ぺい率・容積率

40%・80%

容積率の制限内容

地勢

平坦

国土法

接道

【一方】 北 幅:4m 公道 接面:20m

セットバック

法令上の制限

再建築

建築確認

施工会社名

インスペクション

瑕疵保証

瑕疵保険

設備保証

性能評価

リフォーム・
リノベーション

設備

バス・トイレ別

特記

備考

取引態様

一般媒介

担当者

(電話)090-9597-9322

※物件に関するお問合せは、物件詳細ページの「情報提供会社」に表示されている不動産会社へ直接お願いいたします。

※間取り図は、現況を優先させていただきます。

情報提供会社

(有)エステートマツイシ

会社情報を見る

住所

熊本県熊本市 中央区新町1丁目4-16

TEL

096-356-3522

FAX

096-359-8141

免許番号

熊本県知事免許(8)第3108号

所属団体

(一社)熊本県宅地建物取引業協会
(一社)九州不動産公正取引協議会

loading