売買 新築一戸建

高知県高知市石立町 3LDK

価格

3,880万円

築年月 2022[R4]年04月
土地面積 公簿171.63㎡(約51.91坪)
建物面積 105.15㎡(約31.8坪)
階建
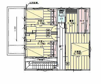
間取り 3LDK
建・容率 60%・200%

物件詳細

物件種別

売一戸建て住宅等

物件種目

新築一戸建 (新築)

情報更新日

2026年04月20日

次回更新予定日

2026年05月18日

物件番号

6002762398

所在地

高知県高知市石立町 地図を見る

交通

石立神社前停 徒歩5分

小学校

中学校

現況

未完成

引渡可能時期

相談

価格

3,880万円

土地面積

公簿 171.63㎡ (約51.91坪)

私道面積

建物構造

木造

階建

築年月

2022[R4]年04月

建物面積

105.15㎡ (約31.8坪)

間取り

3LDK

バルコニー・庭

駐車場

その他ランニングコスト

その他一時金

条件等

土地権利

所有権

地目

(現況地目:宅地)

都市計画

市街化区域

用途地域

第一種中高層住居専用地域

地域地区

建ぺい率・容積率

60%・200%

容積率の制限内容

地勢

平坦

国土法

接道

セットバック

法令上の制限

再建築

建築確認

有 【建築確認番号】R03-00810号

施工会社名

インスペクション

瑕疵保証

瑕疵保険

設備保証

性能評価

リフォーム・
リノベーション

設備

特記

備考

取引態様

売主

担当者

※物件に関するお問合せは、物件詳細ページの「情報提供会社」に表示されている不動産会社へ直接お願いいたします。

※間取り図は、現況を優先させていただきます。

周辺環境情報
マルナカ旭店 (235m)
その他

マルナカ旭店 (235m)

ユニクロ土佐道路店 (227m)
その他

ユニクロ土佐道路店 (227m)

よどやドラッグ石立店 (203m)
その他

よどやドラッグ石立店 (203m)

ローソン高知旭町店 (390m)
その他

ローソン高知旭町店 (390m)

四国銀行神田支店 (366m)
その他

四国銀行神田支店 (366m)

情報提供会社

株式会社開成開発

会社情報を見る

住所

高知県高知市越前町2丁目8番2号

TEL

088-823-7684

FAX

088-823-7686

免許番号

高知県知事免許(7)第2086号

所属団体

(公社)高知県宅地建物取引業協会
四国地区不動産公正取引協議会

loading