売買 売地

福岡県筑後市大字尾島 住宅用地

価格

656万円

坪単価 13万円
土地面積 公簿166.95㎡(約50.5坪)
最適用途 住宅用地
地目 宅地
建・容率 70%・200%
用途地域 無指定

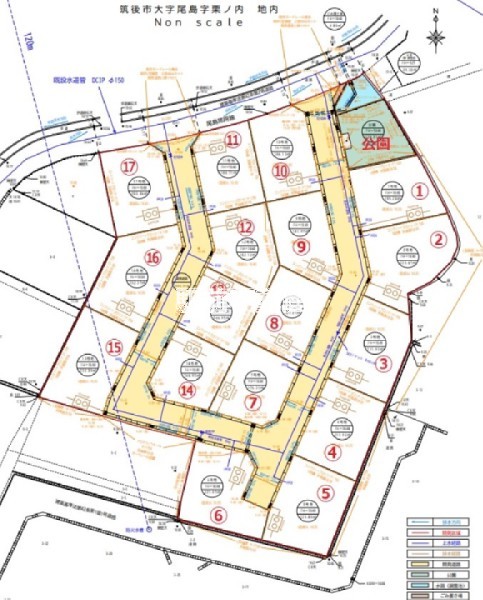
【建築条件なし】全17区画分譲地。残り10区画。お好きなハウスメーカーで建築できます!水道加入金が必要になります。

1号地

1号地

2号地

2号地

3号地

3号地

5号地

5号地

6号地

6号地

8号地

8号地

12号地

12号地

14号地

14号地

公園

公園

道路

道路

道路

道路

道路

道路

物件詳細

物件種別

売土地

物件種目

売地

情報更新日

2026年03月17日

次回更新予定日

2026年05月26日

物件番号

5100290800

所在地

福岡県筑後市大字尾島

区画名

交通

鹿児島本線筑後船小屋駅 徒歩20分
鹿児島本線羽犬塚駅 徒歩37分
鹿児島本線瀬高駅 徒歩51分

小学校

水洗 200m

中学校

筑後 1,500m

現況

更地

引渡可能時期

相談

価格

656万円

坪単価

13万円

土地面積

公簿 166.95㎡ (約50.5坪)

私道面積

最適用途

住宅用地

土地権利

所有権

地目

宅地

都市計画

非線引区域

用途地域

無指定

地域地区

建ぺい率・容積率

70%・200%

容積率の制限内容

地勢

平坦

総区画数

国土法

国土法届出不要

接道

【一方】 西 幅:6m 公道 接面:12.2m/南 幅:6m 公道 接面:10.7m

その他ランニングコスト

その他一時金

条件等

現況渡

性能評価

セットバック

法令上の制限

再建築

開発許可等番号

分譲

開発面積総面積

総販売面積

設備

電気、上水道、浄化槽

特記

備考

※水道加入金が必要になります。
JR筑後船小屋駅まで徒歩20分です。【建築条件なし】お好きなハウスメーカーで建築できます!詳細は担当城戸:070-4690-1086まで

取引態様

一般媒介

担当者

城戸 恭兵 (電話)070-4690-1086

※物件に関するお問合せは、物件詳細ページの「情報提供会社」に表示されている不動産会社へ直接お願いいたします。

※間取り図は、現況を優先させていただきます。

周辺環境情報
その他

水洗小学校 (200m)

その他

筑後中学校 (1,500m)

その他

八女高等学校 (2,400m)

その他

九州大谷短期大学 (6,700m)

その他

八女筑後看護専門学校 (7,800m)

その他

セブンイレブン 船小屋店 (300m)

その他

マミーズ 船小屋店 (200m)

その他

永田医院 (200m)

その他

東山中央保育園 (2,500m)

その他

筑後広域公園 (2,300m)

情報提供会社

(株)駅前不動産 売買鳥栖

会社情報を見る

住所

佐賀県鳥栖市宿町1105-6

交通

鹿児島本線鳥栖 徒歩15分

TEL

0942-80-8600

FAX

0942-80-8601

免許番号

国土交通大臣免許(3)第7725号

所属団体

(公社)佐賀県宅地建物取引業協会
(一社)九州不動産公正取引協議会

loading