物件詳細
物件種別
売土地
物件種目
売地
情報更新日
2026年03月17日
次回更新予定日
2026年05月26日
物件番号
5100289132
所在地
徳島県三好郡東みよし町西庄字横手 地図を見る
区画名
交通
徳島線三加茂駅 徒歩18分 駅までmap
小学校
三庄 950m
中学校
三加茂 22m
現況
更地
引渡可能時期
即時
価格
455.7万円
坪単価
6万円
土地面積
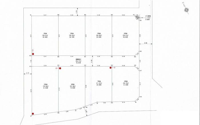
公簿 251.08㎡ (約75.95坪)
私道面積
無
最適用途
土地権利
所有権
地目
宅地
都市計画
区域外
用途地域
無指定
地域地区
建ぺい率・容積率
容積率の制限内容
地勢
総区画数
国土法
接道
【二方(除角地)】
その他ランニングコスト
その他一時金
条件等
更地渡
性能評価
セットバック
法令上の制限
再建築
開発許可等番号
分譲
開発面積総面積
総販売面積
設備
上水道
特記
備考
引渡 売買契約締結後、分筆登記及び、敷地境界5段ブロック(道路面2mは2段+フェンス)施工して引渡
水道 上水道引込済(2mm)※メーター加入金別途(13mm/88,000円+検査料1,000円)
排水 東みよし浄化槽設備事業によるFPI方式浄化槽
隣地境界ブロック施工費用(税別10,000円/1mあたり)の折半分、固定資産税、登記費用
建築会社を指定する条件付き宅地ではありません。
住宅ローンに関しては、阿波みよし農業協同組合に事前審査申込いただきます。
1号地、6号地、8号地には電線及び、5
水道 上水道引込済(2mm)※メーター加入金別途(13mm/88,000円+検査料1,000円)
排水 東みよし浄化槽設備事業によるFPI方式浄化槽
隣地境界ブロック施工費用(税別10,000円/1mあたり)の折半分、固定資産税、登記費用
建築会社を指定する条件付き宅地ではありません。
住宅ローンに関しては、阿波みよし農業協同組合に事前審査申込いただきます。
1号地、6号地、8号地には電線及び、5
取引態様
専任媒介
担当者
高岡 詳しくは当方ホームページをご覧くだ (電話)090-2781-8987
※物件に関するお問合せは、物件詳細ページの「情報提供会社」に表示されている不動産会社へ直接お願いいたします。
※間取り図は、現況を優先させていただきます。
情報提供会社
MIRAIZU
住所
徳島県三好市池田町 シマ871-2
交通
徳島線阿波池田 徒歩分
TEL
0883-87-7733
FAX
0883-87-7734
免許番号
徳島県知事免許(2)第3047号
所属団体
(公社)徳島県宅地建物取引業協会
四国地区不動産公正取引協議会