売買 売地

香川県丸亀市飯野町東二 住宅用地

価格

800万円

坪単価 11.76万円
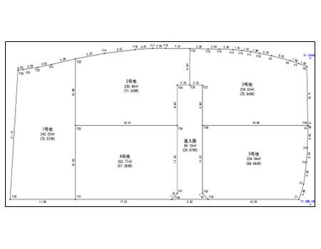
土地面積 公簿224.94㎡(約68.04坪)
最適用途 住宅用地
地目 宅地
建・容率 70%・200%
用途地域 無指定

物件詳細

物件種別

売土地

物件種目

売地

情報更新日

2026年02月28日

次回更新予定日

2026年05月19日

物件番号

5100259638

所在地

香川県丸亀市飯野町東二 地図を見る

区画名

交通

予讃線丸亀駅 徒歩75分  駅までmap

小学校

飯野 1,250m

中学校

丸亀東 4,550m

現況

更地

引渡可能時期

相談

価格

800万円

坪単価

11.76万円

土地面積

公簿 224.94㎡ (約68.04坪)

私道面積

最適用途

住宅用地

土地権利

所有権

地目

宅地

都市計画

非線引区域

用途地域

無指定

地域地区

建ぺい率・容積率

70%・200%

容積率の制限内容

地勢

平坦

総区画数

国土法

接道

【一方】 南東 幅:4.5m 公道 接面:16.2m 舗装有

その他ランニングコスト

その他一時金

条件等

現況渡

性能評価

セットバック

法令上の制限

再建築

開発許可等番号

第31号

分譲

開発面積総面積

総販売面積

設備

特記

備考

5号地

取引態様

売主

担当者

※物件に関するお問合せは、物件詳細ページの「情報提供会社」に表示されている不動産会社へ直接お願いいたします。

※間取り図は、現況を優先させていただきます。

情報提供会社

(有)庄栄不動産

会社情報を見る

住所

香川県観音寺市植田町351-5

交通

予讃線観音寺 徒歩20分

TEL

0875-23-2638

FAX

0875-25-4888

免許番号

香川県知事免許(9)第3070号

所属団体

(公社)香川県宅地建物取引業協会
四国地区不動産公正取引協議会

loading