売買 売地

香川県高松市屋島西町 住宅用地

価格

1,450万円

坪単価 13.67万円
土地面積 公簿350.82㎡(約106.12坪)
最適用途 住宅用地
地目 宅地
建・容率 200%・60%
用途地域 第二種中高層住居専用地域
現地(東から)

現地(東から)

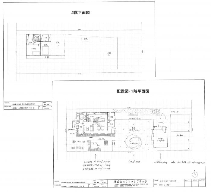
区画図

区画図

プラン例

プラン例

物件詳細

物件種別

売土地

物件種目

売地

情報更新日

2026年02月28日

次回更新予定日

2026年05月19日

物件番号

5100258999

所在地

香川県高松市屋島西町 地図を見る

区画名

交通

高松琴平電鉄志度線潟元駅 徒歩6分  駅までmap

小学校

屋島 700m

中学校

屋島 1,000m

現況

建物有

引渡可能時期

相談

価格

1,450万円

坪単価

13.67万円

土地面積

公簿 350.82㎡ (約106.12坪)

私道面積

最適用途

住宅用地

土地権利

所有権

地目

宅地

都市計画

非線引区域

用途地域

第二種中高層住居専用地域

地域地区

建ぺい率・容積率

200%・60%

容積率の制限内容

地勢

平坦

総区画数

国土法

接道

【一方】 東 幅:7.1m 公道 接面:10.8m 舗装有/西 幅:2.3m 公道 接面:10.8m

その他ランニングコスト

その他一時金

条件等

現況渡

性能評価

セットバック

法令上の制限

再建築

開発許可等番号

分譲

開発面積総面積

総販売面積

設備

特記

備考

駅近・買い物便利な好立地!
最寄り駅まで6分・スーパーまで3分・コンビニまで4分の生活便利な好立地物件の登場です!100坪越えの土地で理想の住まいを!東側・西側に接道しており、使い方も自由自在。※西側は建築基準法外道路です。生活施設が充実しているので、普段の生活には車も必要ない環境です!

取引態様

売主

担当者

※物件に関するお問合せは、物件詳細ページの「情報提供会社」に表示されている不動産会社へ直接お願いいたします。

※間取り図は、現況を優先させていただきます。

情報提供会社

(株)フソウリブテック

会社情報を見る

住所

香川県高松市郷東町216

TEL

087-882-5711

FAX

087-881-1997

免許番号

香川県知事免許(2)第4390号

所属団体

(公社)香川県宅地建物取引業協会
四国地区不動産公正取引協議会

loading