売買 新築一戸建

熊本県荒尾市川登 3LDK

価格

2,390万円

築年月 2023[R5]年03月
土地面積 公簿150.19㎡(約45.43坪)
建物面積 77.83㎡(約23.54坪)
階建 地上2階
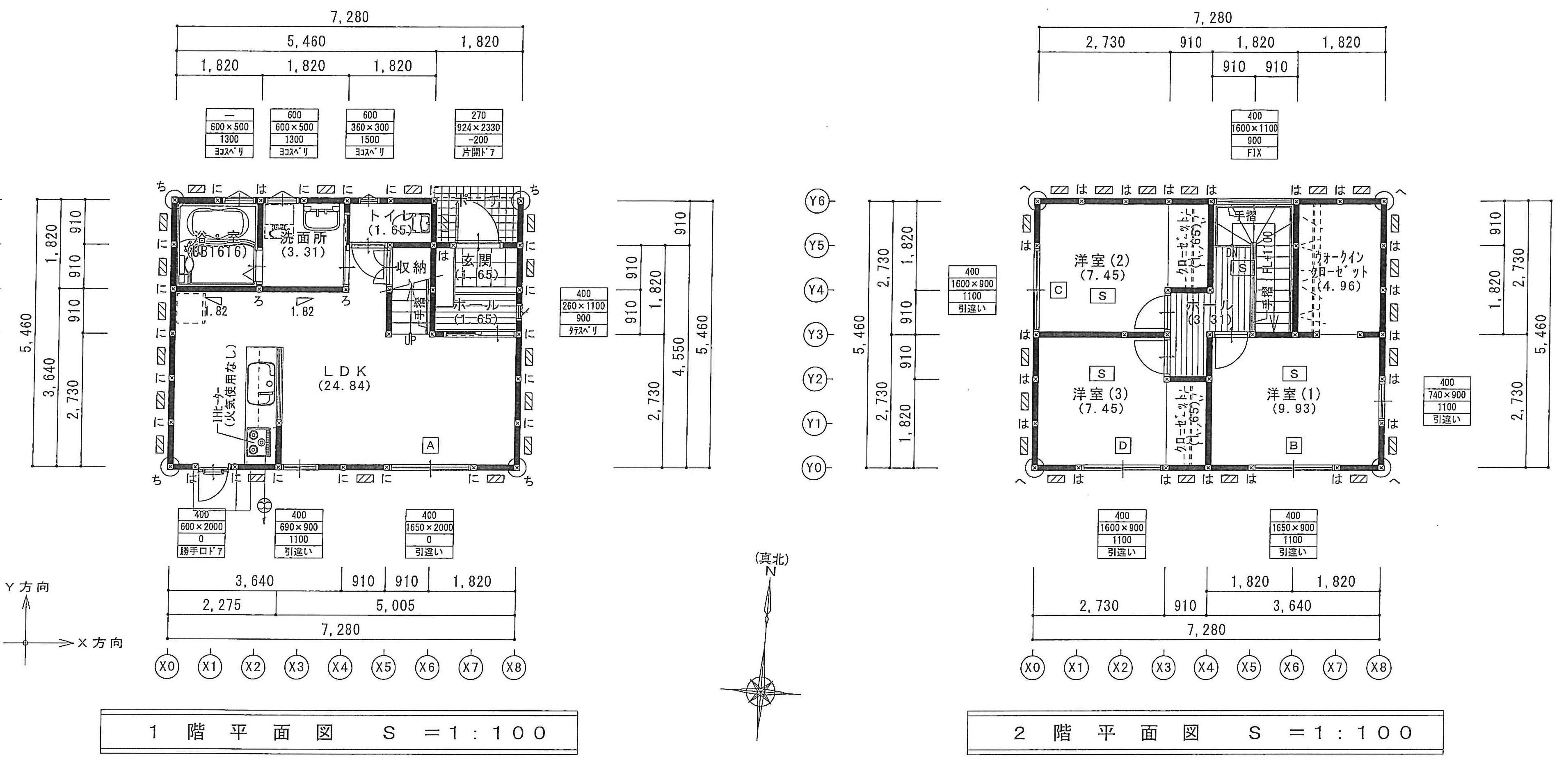
間取り 3LDK
建・容率 80%・200%
現地(外観)

現地(外観)

キッチン

キッチン

間取り図

間取り図

物件詳細

物件種別

売一戸建て住宅等

物件種目

新築一戸建 (新築)

情報更新日

2026年05月04日

次回更新予定日

2026年05月18日

物件番号

5100102503

所在地

熊本県荒尾市川登 地図を見る

交通

産交バス運動公園前停 徒歩3分

小学校

中央 650m

中学校

荒尾第三 1,900m

現況

空家

引渡可能時期

相談

価格

2,390万円

土地面積

公簿 150.19㎡ (約45.43坪)

私道面積

建物構造

木造

階建

地上2階

築年月

2023[R5]年03月

建物面積

77.83㎡ (約23.54坪) 建物面積1階38.09㎡、建物面積2階39.74㎡

間取り

3LDK

バルコニー・庭

/庭有

駐車場

有 無料

その他ランニングコスト

その他一時金

条件等

土地権利

所有権

地目

(現況地目:宅地)

都市計画

非線引区域

用途地域

近隣商業地域

地域地区

建ぺい率・容積率

80%・200%

容積率の制限内容

地勢

平坦

国土法

接道

【一方】 北 幅:7.2m 公道 接面:9.5m 舗装有

セットバック

法令上の制限

再建築

建築確認

有 【建築確認番号】県北第120088号

施工会社名

インスペクション

瑕疵保証

瑕疵保険

瑕疵保険検査基準に適合

設備保証

性能評価

リフォーム・
リノベーション

設備

温水洗浄便座、追焚機能、浴室乾燥機、浴室暖房、洗面所、システムキッチン、IHクッキングヒーター、食器洗浄乾燥機、浄水器、床下収納、ウォークインクローゼット、複層ガラス、火災報知器(報知器)、電気、上水道、下水道、側溝、オール電化

特記

整形地

備考

取引態様

売主

担当者

松尾 和哉

※物件に関するお問合せは、物件詳細ページの「情報提供会社」に表示されている不動産会社へ直接お願いいたします。

※間取り図は、現況を優先させていただきます。

情報提供会社

久留米建設(株) 熊本店

会社情報を見る

住所

熊本県荒尾市荒尾字田添3417-1

TEL

0968-63-1960

FAX

0968-63-1961

免許番号

国土交通大臣免許(2)第8577号

所属団体

(一社)熊本県宅地建物取引業協会
(一社)九州不動産公正取引協議会

loading