売買 中古一戸建

熊本県八代市松崎町 4LDK

価格

2,890万円

築年月 2015[H27]年04月
土地面積 公簿244.83㎡(約74.06坪)
建物面積 140㎡(約42.35坪)
階建 地上2階
間取り 4LDK
建・容率 60%・200%
現地(外観)

現地(外観)

現地(外観)

現地(外観)

リビング

リビング

リビング

リビング

キッチン

キッチン

キッチン

キッチン

キッチン

キッチン

洗面台・洗面所

洗面台・洗面所

浴室

浴室

トイレ

トイレ

リビング以外の居室

リビング以外の居室

物件詳細

物件種別

売一戸建て住宅等

物件種目

中古一戸建

情報更新日

2026年05月04日

次回更新予定日

2026年05月18日

物件番号

5100099392

所在地

熊本県八代市松崎町 地図を見る

交通

産交バス永碇第二停 徒歩10分

小学校

松高 1,160m

中学校

第一 1,680m

現況

居住中

引渡可能時期

相談

価格

2,890万円

土地面積

公簿 244.83㎡ (約74.06坪)

私道面積

511㎡ (負担割合:1/10)

建物構造

木造

階建

地上2階

築年月

2015[H27]年04月

建物面積

140㎡ (約42.35坪) 建物面積1階80.25㎡、建物面積2階59.75㎡

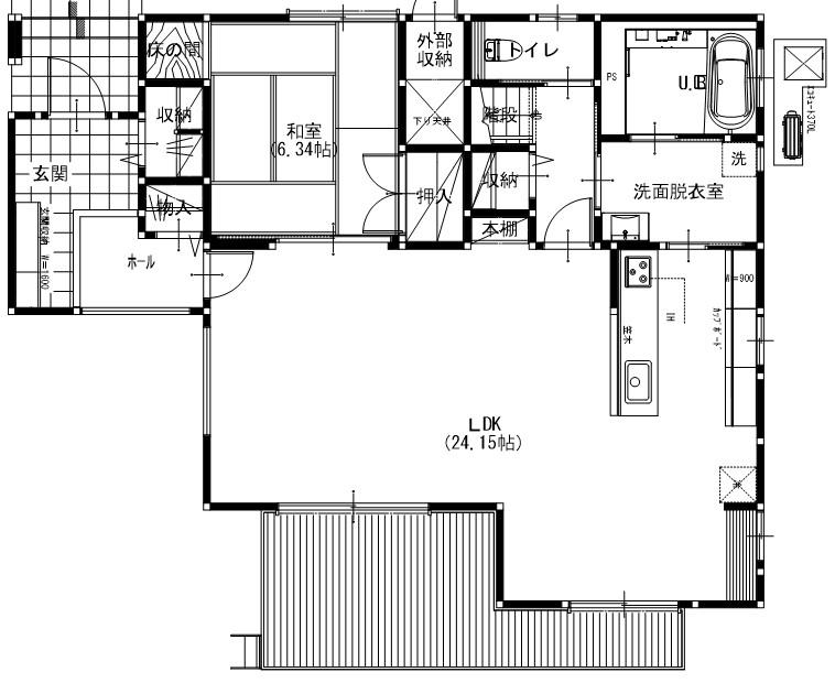
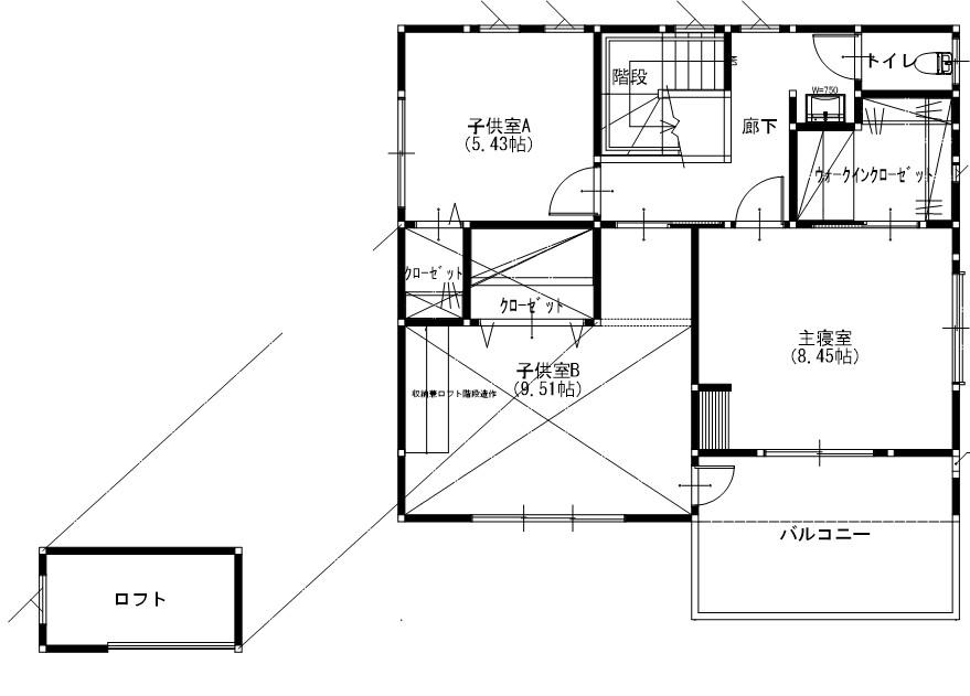
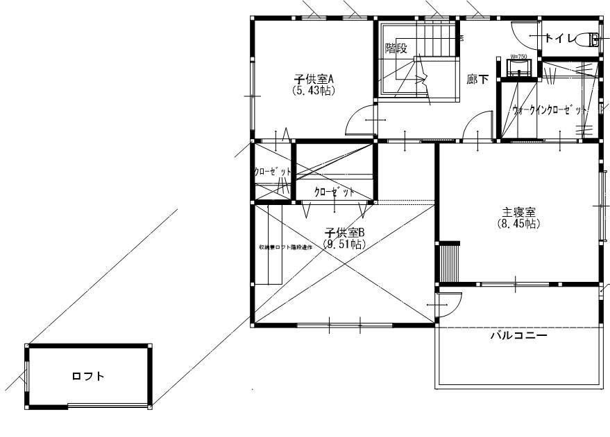
間取り

4LDK 和室6帖/洋室7帖/洋室7.8帖/洋室4.5帖/LDK20帖

バルコニー・庭

ルーフバルコニー、ウッドデッキ

駐車場

有 無料 駐車場3台分以上

その他ランニングコスト

その他一時金

条件等

土地権利

所有権

地目

(現況地目:宅地)

都市計画

非線引区域

用途地域

第二種中高層住居専用地域

地域地区

建ぺい率・容積率

60%・200%

容積率の制限内容

地勢

平坦

国土法

接道

【一方】 北 幅:6.5m 私道 接面:18.2m 位置指定有 舗装有

セットバック

法令上の制限

再建築

建築確認

施工会社名

インスペクション

瑕疵保証

瑕疵保険

瑕疵保険検査基準に適合

設備保証

性能評価

リフォーム・
リノベーション

設備

トイレ2ヶ所、バス・トイレ別、浴室乾燥機、浴室1坪以上、洗面所、IHクッキングヒーター、食器洗浄乾燥機、浄水器、クローゼット、ウォークインクローゼット、シューズインクローゼット、モニター付インターホン、ディンプルキー、電動シャッター

特記

閑静な住宅街、整形地

備考

LDK20帖+和室6帖が隣接して広々暮らせます 駐車場4台可能で、日当たりもよくウッドデッキが嬉しいです 家事動線と収納がよく考えられた間取りです 2階の子供部屋にはロフトがあり楽しく想像力がかき立てられます

取引態様

一般媒介

担当者

立川 (電話)090-1973-1823

※物件に関するお問合せは、物件詳細ページの「情報提供会社」に表示されている不動産会社へ直接お願いいたします。

※間取り図は、現況を優先させていただきます。

情報提供会社

東宝ホーム(株) 熊本営業所

会社情報を見る

住所

熊本県熊本市 中央区白山1丁目2-7

交通

豊肥本線新水前寺 徒歩3分

TEL

096-373-1040

FAX

096-373-1050

免許番号

国土交通大臣免許(2)第8265号

所属団体

(一社)熊本県宅地建物取引業協会
(一社)九州不動産公正取引協議会

loading