売買 新築一戸建

熊本県宇土市神合町 3SLDK

価格

2,880万円

築年月 2023[R5]年01月
土地面積 公簿200.83㎡(約60.75坪)
建物面積 101.43㎡(約30.68坪)
階建 地上2階
間取り 3SLDK
建・容率 60%・200%

物件詳細

物件種別

売一戸建て住宅等

物件種目

新築一戸建 (新築)

情報更新日

2026年05月04日

次回更新予定日

2026年05月18日

物件番号

5100098153

所在地

熊本県宇土市神合町 地図を見る

交通

城・神馬団地入口停 徒歩3分

小学校

宇土 1,200m

中学校

鶴城 1,400m

現況

未完成

引渡可能時期

相談

価格

2,880万円

土地面積

公簿 200.83㎡ (約60.75坪)

私道面積

5.43㎡ (負担割合:1/7)

建物構造

木造

階建

地上2階

築年月

2023[R5]年01月

建物面積

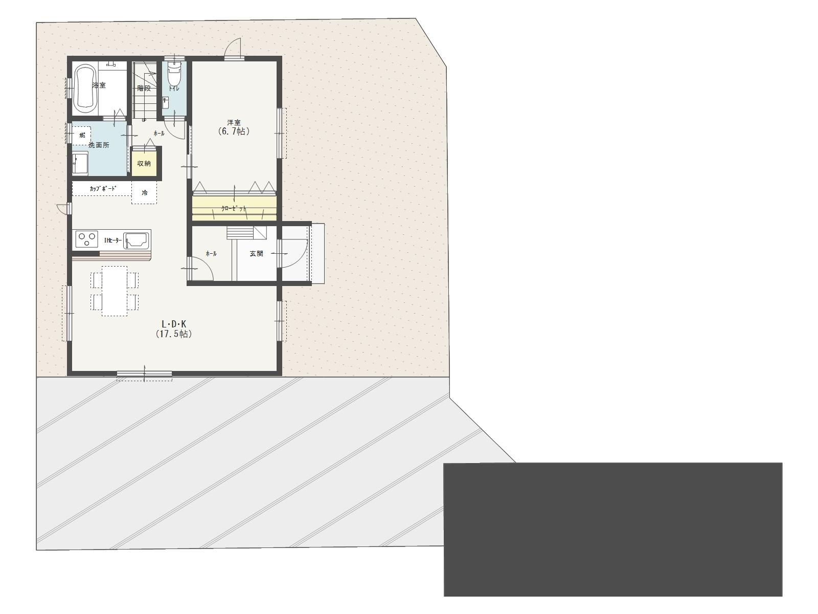
101.43㎡ (約30.68坪) 建物面積1階60.86㎡、建物面積2階40.57㎡

間取り

3SLDK 洋室6.7帖/洋室6.5帖/洋室7.5帖/SLDK17.5帖/サービスルーム3帖

バルコニー・庭

ルーフバルコニー

駐車場

有 無料 駐車場3台分以上

その他ランニングコスト

町内会費:月額 1,200円

その他一時金

条件等

土地権利

所有権

地目

(現況地目:宅地)

都市計画

非線引区域

用途地域

第一種中高層住居専用地域

地域地区

建ぺい率・容積率

60%・200%

容積率の制限内容

地勢

国土法

接道

【一方】 南東 幅:5m 公道 接面:4.7m

セットバック

法令上の制限

再建築

建築確認

有 【建築確認番号】第202208490号

施工会社名

インスペクション

瑕疵保証

瑕疵保険

設備保証

性能評価

評価・証明書:建築確認完了検査済証

リフォーム・
リノベーション

設備

トイレ2ヶ所、温水洗浄便座、バス・トイレ別、追焚機能、シャワー、浴室乾燥機、浴室暖房、浴室1坪以上、洗面所、洗面台、シャワー付洗面化粧台、システムキッチン、カウンターキッチン、IHクッキングヒーター、グリル、浄水器、収納スペース、全居室収納、クローゼット、ウォークインクローゼット、エアコン2台以上、24時間換気システム、室内洗濯機置場、フローリング、全居室フローリング、クッションフロア、複層ガラス、雨戸、シャッター、照明器具、人感センサー付照明、ダウンライト、モニター付インターホン、ダブルロックドア、ディンプルキー、火災報知器(報知器)、電気、上水道、下水道、給湯、オール電化、プール

特記

閑静な住宅街、全室2面採光、日当たり良好、外壁サイディング

備考

■ゴミ置き場:持分1/7あり(5.43㎡) ■省令準耐火構造・オール電化住宅 ■町内会費:年額12,000円程度微収あり

取引態様

売主

担当者

※物件に関するお問合せは、物件詳細ページの「情報提供会社」に表示されている不動産会社へ直接お願いいたします。

※間取り図は、現況を優先させていただきます。

情報提供会社

(株)だんだんホーム

会社情報を見る

住所

熊本県熊本市 西区野中2丁目12-20

交通

乗車時間分 野中 停歩3分

TEL

096-326-6288

FAX

096-326-6277

免許番号

熊本県知事免許(2)第4850号

所属団体

(一社)熊本県宅地建物取引業協会
(一社)九州不動産公正取引協議会

loading