賃貸 事務所

熊本県熊本市東区東京塚町

icon-new

賃料

14.3万円

管理費等
敷金 60万円
礼金
保証金
階建・階 地上2階 2階部分
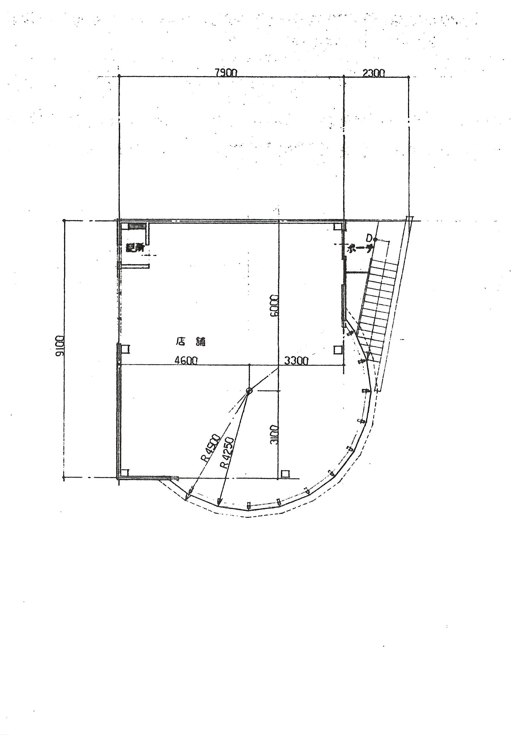
使用部分面積 76.55㎡(約23.15坪)

看板設置個所

看板設置個所

平面図

平面図

物件詳細

物件種別

賃貸住宅以外の建物一部

物件種目

事務所

情報更新日

2026年05月04日

次回更新予定日

2026年05月18日

物件番号

5100064736

所在地

熊本県熊本市東区東京塚町 地図を見る

建物名

T&Kアネックスビル 2F

交通

灰塚停 徒歩3分

小学校

中学校

現況

空家

入居可能時期

相談

賃料

14.3万円

管理費

共益費

雑費

駐車場

有 無料 駐車場2台分

その他ランニングコスト

礼金

敷金・精算

60万円、敷金精算 実費

保証金・償却

権利金

造作譲渡

鍵交換代

室内清掃費

その他一時金

家賃保証:143,000円

建物構造

鉄骨造

階建・所在階

地上2階 2階部分

築年月

1993[H5]年01月

使用部分面積

76.55㎡ (約23.15坪)

間取り

バルコニー

総戸数

契約期間

2年

更新料

フリーレント

定期借家

保険


※入居者や条件によっては、保険等内容が変更になる場合があります。

賃貸保証

クレジットカード決済

条件等

管理会社名

管理員の勤務形態

インスペクション

性能評価

リフォーム・
リノベーション

用途地域

接道

設備

特記

備考

取引態様

一般媒介

担当者

※物件に関するお問合せは、物件詳細ページの「情報提供会社」に表示されている不動産会社へ直接お願いいたします。

※間取り図は、現況を優先させていただきます。

情報提供会社

(有)コムロ不動産

会社情報を見る

住所

熊本県熊本市 中央区出水4丁目35-16

TEL

096-366-7822

FAX

096-366-7832

免許番号

熊本県知事免許(7)第3397号

所属団体

(一社)熊本県宅地建物取引業協会
(一社)九州不動産公正取引協議会

loading