売買 新築一戸建

熊本県上益城郡嘉島町大字鯰 3LDK

価格

2,978万円

築年月 2023[R5]年06月
土地面積 公簿113.26㎡(約34.26坪)
建物面積 91.08㎡(約27.55坪)
階建 地上2階
間取り 3LDK
建・容率 60%・200%

物件詳細

物件種別

売一戸建て住宅等

物件種目

新築一戸建 (新築)

情報更新日

2026年05月04日

次回更新予定日

2026年05月18日

物件番号

5100057282

所在地

熊本県上益城郡嘉島町大字鯰 地図を見る

交通

熊本バス鯰停 徒歩1分

小学校

嘉島西 300m

中学校

嘉島 2,000m

現況

未完成

引渡可能時期

相談

価格

2,978万円

土地面積

公簿 113.26㎡ (約34.26坪)

私道面積

建物構造

木造

階建

地上2階

築年月

2023[R5]年06月

建物面積

91.08㎡ (約27.55坪) 建物面積1階44.71㎡、建物面積2階46.37㎡

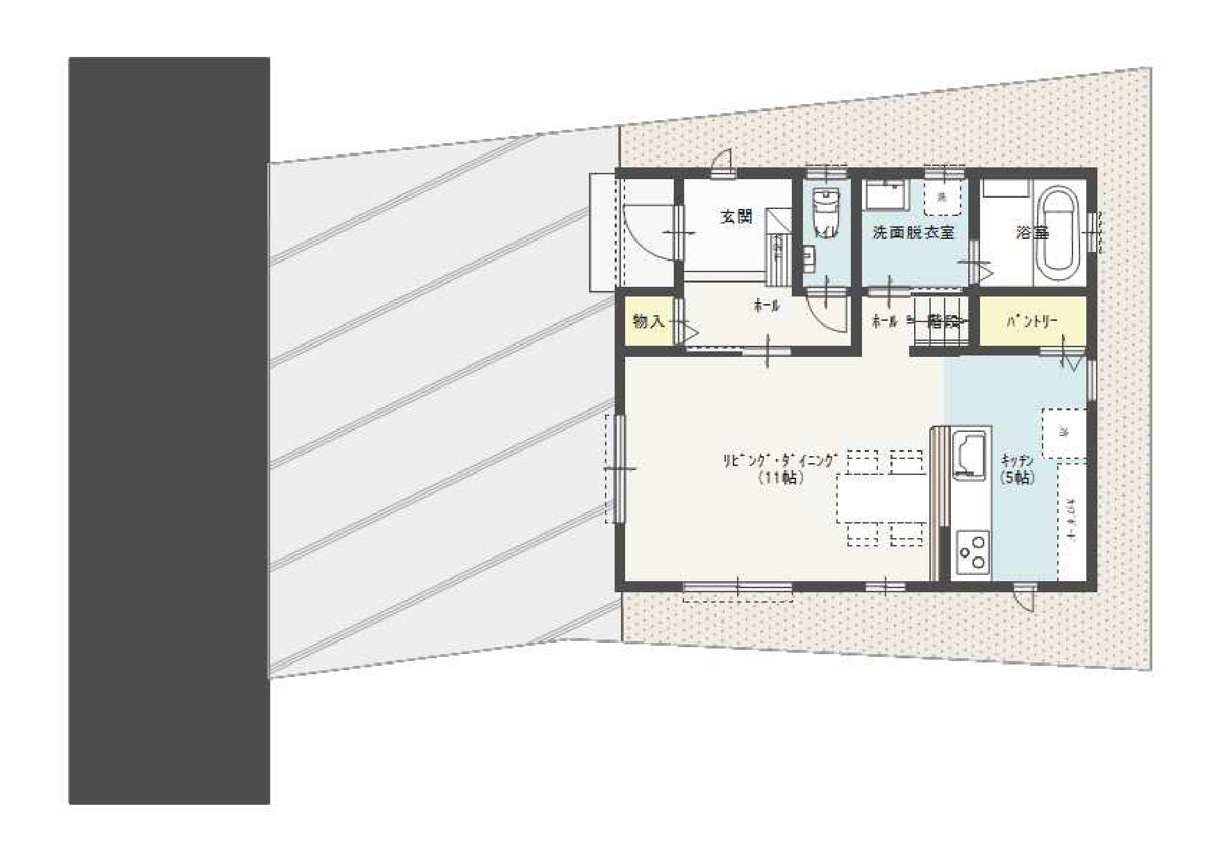
間取り

3LDK 和室5.2帖/洋室5.1帖/洋室7.2帖/LDK16帖

バルコニー・庭

駐車場

有 無料 駐車場3台分以上

その他ランニングコスト

その他一時金

条件等

土地権利

所有権

地目

(現況地目:宅地)

都市計画

市街化区域

用途地域

第二種住居地域

地域地区

建ぺい率・容積率

60%・200%

容積率の制限内容

地勢

国土法

接道

【一方】 西 幅:16m 公道 接面:8m

セットバック

法令上の制限

再建築

建築確認

有 【建築確認番号】第202223370号

施工会社名

インスペクション

瑕疵保証

瑕疵保険

設備保証

性能評価

リフォーム・
リノベーション

設備

トイレ2ヶ所、温水洗浄便座、追焚機能、シャワー、浴室乾燥機、浴室暖房、浴室1坪以上、洗面所、洗面台、シャワー付洗面化粧台、システムキッチン、カウンターキッチン、IHクッキングヒーター、グリル、浄水器、収納スペース、全居室収納、クローゼット、ウォークインクローゼット、エアコン、エアコン2台以上、24時間換気システム、室内洗濯機置場、フローリング、全居室フローリング、クッションフロア、複層ガラス、雨戸、シャッター、照明器具、人感センサー付照明、ダウンライト、モニター付インターホン、ダブルロックドア、ディンプルキー、火災報知器(報知器)、電気、井戸水道、側溝、給湯、オール電化

特記

前面棟無、区画整理地内、2面採光、外壁サイディング

備考

◇省令準耐火構造 ◇井戸水引込ポンプ付き

取引態様

売主

担当者

※物件に関するお問合せは、物件詳細ページの「情報提供会社」に表示されている不動産会社へ直接お願いいたします。

※間取り図は、現況を優先させていただきます。

情報提供会社

(株)だんだんホーム

会社情報を見る

住所

熊本県熊本市 西区野中2丁目12-20

交通

乗車時間分 野中 停歩3分

TEL

096-326-6288

FAX

096-326-6277

免許番号

熊本県知事免許(2)第4850号

所属団体

(一社)熊本県宅地建物取引業協会
(一社)九州不動産公正取引協議会

loading