売買 新築一戸建

熊本県合志市豊岡 3LDK

価格

3,837万円

築年月 2023[R5]年02月
土地面積 実測242.09㎡(約73.23坪)
建物面積 93.65㎡(約28.32坪)
階建 地上2階
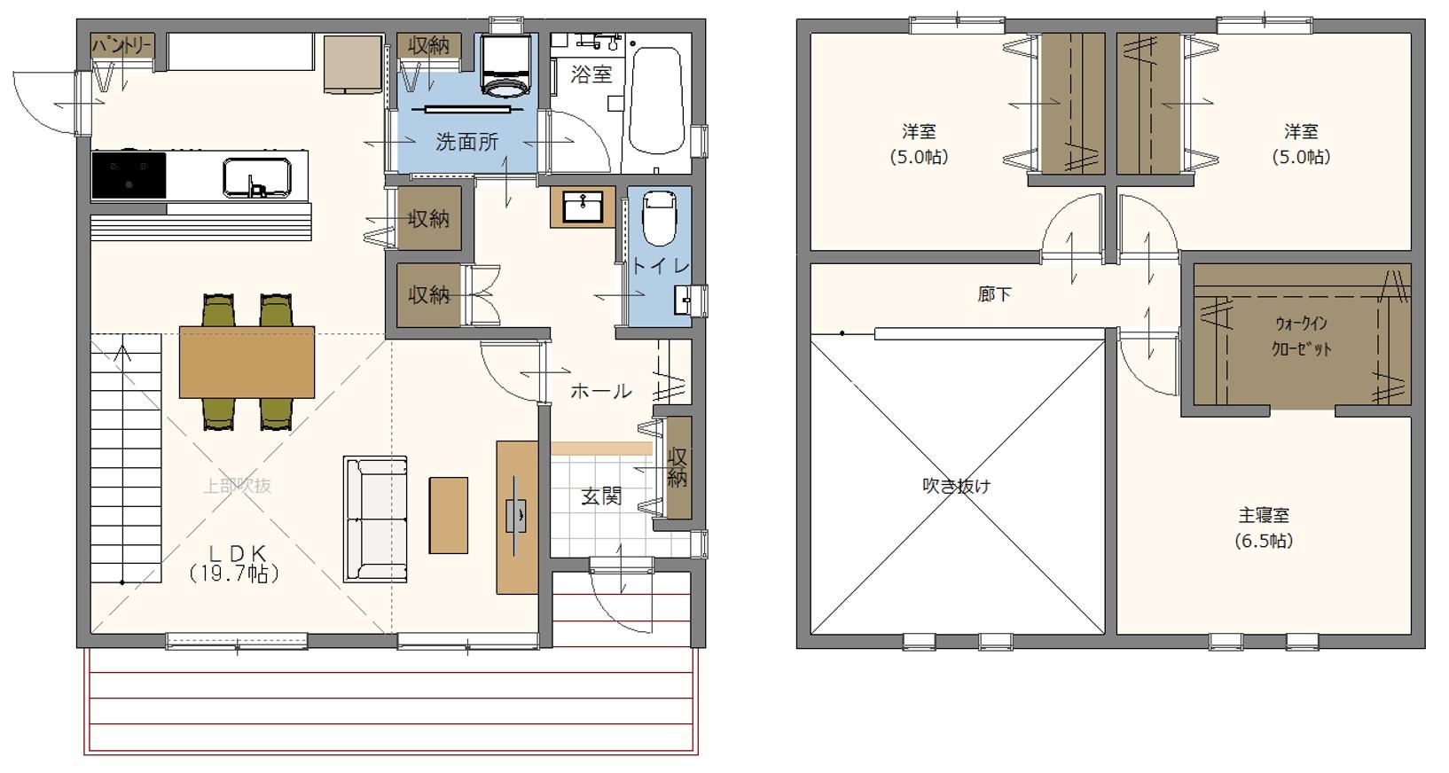
間取り 3LDK
建・容率 70%・200%
現地(外観)

現地(外観)

リビング

リビング

キッチン

キッチン

物件詳細

物件種別

売一戸建て住宅等

物件種目

新築一戸建 (新築)

情報更新日

2026年05月04日

次回更新予定日

2026年05月18日

物件番号

5100042248

所在地

熊本県合志市豊岡 地図を見る

交通

下群

小学校

合志南 1,400m

中学校

合志 2,300m

現況

未完成

引渡可能時期

予定/2023年05月下旬

価格

3,837万円

土地面積

実測 242.09㎡ (約73.23坪)

私道面積

建物構造

木造

階建

地上2階

築年月

2023[R5]年02月

建物面積

93.65㎡ (約28.32坪) 建物面積1階51.34㎡、建物面積2階45.31㎡

間取り

3LDK

バルコニー・庭

ウッドデッキ

駐車場

有 無料 駐車場3台分以上

その他ランニングコスト

その他一時金

条件等

土地権利

所有権

地目

(現況地目:宅地)

都市計画

調整区域

用途地域

無指定

地域地区

建ぺい率・容積率

70%・200%

容積率の制限内容

地勢

国土法

接道

【一方】 南 幅:6m 公道 接面:5.2m 舗装有

セットバック

法令上の制限

再建築

建築確認

有 【建築確認番号】202215220

施工会社名

インスペクション

瑕疵保証

瑕疵保険

瑕疵保険検査基準に適合

設備保証

性能評価

評価・証明書:建築確認完了検査済証
その他:BELS/省エネ基準適合認定、新築時・増改築時の設計図書

リフォーム・
リノベーション

設備

温水洗浄便座、タンクレストイレ、バス・トイレ別、追焚機能、浴室乾燥機、浴室暖房、浴室1坪以上、システムキッチン、IHクッキングヒーター、食器洗浄乾燥機、床下収納、全居室収納、クローゼット、ウォークインクローゼット、24時間換気システム、複層ガラス、照明器具、人感センサー付照明、ダウンライト、モニター付インターホン、ダブルロックドア、火災報知器(報知器)、電気、上水道、下水道、省エネ給湯器、オール電化、太陽光発電システム、EV車充電設備

特記

閑静な住宅街、整形地、高気密高断熱住宅、外壁サイディング、吹抜、工事完了予定年月:2023年02月

備考

取引態様

売主

担当者

※物件に関するお問合せは、物件詳細ページの「情報提供会社」に表示されている不動産会社へ直接お願いいたします。

※間取り図は、現況を優先させていただきます。

周辺環境情報
とよおか保育園 (240m)
その他

とよおか保育園 (240m)

ひかりの子保育園 (565m)
その他

ひかりの子保育園 (565m)

合志市立合志南小学校 (1,937m)
その他

合志市立合志南小学校 (1,937m)

合志市立合志中学校 (2,499m)
その他

合志市立合志中学校 (2,499m)

ザ・ファクトリーニシムタ熊本合志店 (2,039m)
ショッピング施設

ザ・ファクトリーニシムタ熊本合志店 (2,039m)

アンビー熊本 (2,042m)
その他

アンビー熊本 (2,042m)

ファミリーマート合志豊岡店 (847m)
ショッピング施設

ファミリーマート合志豊岡店 (847m)

独立行政法人国立病院機構熊本再春医療センター (2,416m)
その他

独立行政法人国立病院機構熊本再春医療センター (2,416m)

熊本県農業公園 (2,761m)
その他

熊本県農業公園 (2,761m)

情報提供会社

(株)ヤマックス

会社情報を見る

住所

熊本県熊本市 中央区水前寺3丁目9-5

交通

豊肥本線水前寺 徒歩2分

TEL

096-381-6411

FAX

096-383-1654

免許番号

熊本県知事免許(6)第3716号

所属団体

(一社)熊本県宅地建物取引業協会
(一社)九州不動産公正取引協議会

loading