売買 店舗付き住宅

熊本県熊本市南区城南町東阿高

価格

1,380万円

建物構造 鉄骨造
土地面積 公簿188.57㎡(約57.04坪)
建物延面積 136.37㎡
階建 地上2階
築年月 2005[H17]年08月
用途地域

物件詳細

物件種別

売住宅以外の建物全部

物件種目

店舗付き住宅

情報更新日

2026年05月04日

次回更新予定日

2026年05月18日

物件番号

5100033975

所在地

熊本県熊本市南区城南町東阿高 地図を見る

建物名

交通

東阿高団地前停 徒歩2分

小学校

豊田 2,200m

中学校

下益城城南 1,800m

現況

空家

引渡可能時期

即時

価格

1,380万円

土地面積

公簿 188.57㎡ (約57.04坪)

私道面積

建物構造

鉄骨造

階建

地上2階

築年月

2005[H17]年08月

建物延面積

136.37㎡

建物面積

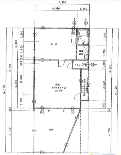
間取り

バルコニー

駐車場

有 無料

その他ランニングコスト

その他一時金

条件等

土地権利

所有権

地目

(現況地目:宅地)

都市計画

調整区域

用途地域

地域地区

建ぺい率・容積率

40%・80%

容積率の制限内容

地勢

国土法

接道

セットバック

法令上の制限

再建築

インスペクション

性能評価

工事完了予定年月

建築確認

施工会社名

管理員の勤務形態

総戸数

リフォーム・
リノベーション

設備

特記

備考

集落内開発制度内

取引態様

専任媒介

担当者

(電話)096-375-5099

※物件に関するお問合せは、物件詳細ページの「情報提供会社」に表示されている不動産会社へ直接お願いいたします。

※間取り図は、現況を優先させていただきます。

情報提供会社

(株)ハウスレッシュ

会社情報を見る

住所

熊本県熊本市 中央区新屋敷2丁目13-12

交通

熊本市健軍線九品寺交差点 徒歩13分

TEL

096-366-9020

FAX

096-364-0933

免許番号

熊本県知事免許(8)第2831号

所属団体

(一社)熊本県宅地建物取引業協会
(一社)九州不動産公正取引協議会

loading