売買 店舗

熊本県菊池郡菊陽町大字津久礼

価格

15,000万円

建物構造 鉄骨造
土地面積 公簿347㎡(約104.96坪)
建物延面積 371.24㎡
階建 地上3階
築年月 2007[H19]年12月
用途地域 第二種中高層住居専用地域

物件詳細

物件種別

売住宅以外の建物全部

物件種目

店舗

情報更新日

2026年05月04日

次回更新予定日

2026年05月18日

物件番号

5100018806

所在地

熊本県菊池郡菊陽町大字津久礼 地図を見る

建物名

菊陽町津久礼売店舗

交通

豊肥本線三里木駅 徒歩29分  駅までmap

小学校

中学校

現況

居住中

引渡可能時期

相談

価格

15,000万円

土地面積

公簿 347㎡ (約104.96坪)

私道面積

建物構造

鉄骨造

階建

地上3階

築年月

2007[H19]年12月

建物延面積

371.24㎡

建物面積

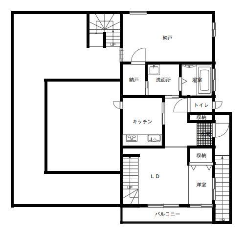
間取り

バルコニー

駐車場

空無

その他ランニングコスト

その他一時金

条件等

土地権利

所有権

地目

(現況地目:宅地)

都市計画

市街化区域

用途地域

第二種中高層住居専用地域

地域地区

建ぺい率・容積率

60%・150%

容積率の制限内容

地勢

国土法

接道

セットバック

法令上の制限

再建築

インスペクション

性能評価

工事完了予定年月

建築確認

施工会社名

管理員の勤務形態

総戸数

リフォーム・
リノベーション

設備

トイレ、電気、上水道、下水道

特記

備考

取引態様

一般媒介

担当者

前田龍生 (電話)090-7453-0678

※物件に関するお問合せは、物件詳細ページの「情報提供会社」に表示されている不動産会社へ直接お願いいたします。

※間取り図は、現況を優先させていただきます。

情報提供会社

(株)ホロムアコーポレーション

会社情報を見る

住所

熊本県熊本市 中央区下通2丁目7-19ホロムアビル

TEL

096-354-7722

FAX

096-354-7721

免許番号

熊本県知事免許(2)第5092号

所属団体

(一社)熊本県宅地建物取引業協会
(一社)九州不動産公正取引協議会

loading